Walk in Cooler Shelving for Beer Caves – Adaptable steel shelving system
Walk in Cooler Shelving for C-store Beer Caves
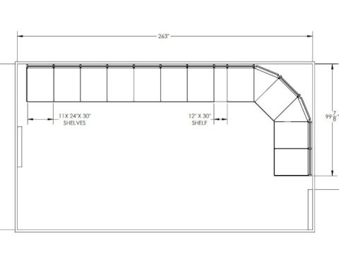
Creative Display Works makes high capacity steel shelving for walk in coolers, beer caves, and stock rooms. Our 30″ and 24″ deep shelving systems are designed to fit into all types of room layouts and to accommodate your custom needs. We will work with your room’s dimensions and help provide the perfect steel shelving solution for your business.
Our steel shelving systems are made to stand up to the demands of commercial use and are made in the USA. We can also ship your custom cooler shelving system on pallet to wherever the project requires.
Walk in cooler & stockroom steel shelving
Our walk in cooler and stockroom shelving features all steel construction, durable powder-coated finish, and base-bolt adjustment for uneven floors. We can build your custom steel shelving to fit in all kinds of spaces and into room corners. With your provided room dimensions, we’ll help you design the steel shelving layout that is perfect for your space.
Our walk in cooler shelving systems are designed to be easy to assemble, connecting together with included included hardware. Optional upright extensions can also mount to the ceiling if desired, for spaces with tall ceilings.
Shelving depths of 30″ and 24″ deep are available. Upright height is 71″ tall standard. All shelving systems also include ‘C’ type tag channel on the front face of every shelf, and along the base deck.
Walk in cooler shelving – adaptable to any stock room
Cooler and stock room shelving available in both 30″ and 24″ shelf depth.
30″ deep shelving is quoted for most applications, and we offer 24″ deep as well, allowing for ADA accessibility and anywhere required, like for tighter walkways.
CDW cooler shelving can be adapted to all types of room configurations, including rooms with low ceilings and those with obstructions. Based on your room’s dimensions, we will assess and then offer the best solutions that your room layout allows.
Beer Cave Cooler & Stock Room Shelving – Adjustable steel shelving

We can help you plan your beer cave cooler or stock room shelving. Send us your room’s layout and dimensions for a custom drawing and price quote. Don’t forget to show doors, walkways, and all room dimensions including ceiling height.
At Creative Display Works, we design and manufacture all types of sales fixtures for convenience stores, gas stations, and grocers. And we strive to build the very best displays possible to help our customers sell.
We offer a wide range of store fixtures including tobacco and liquor sales displays, beer cave steel shelving systems, LED candy racks, island beverage tubs, and more. If you need custom sales fixtures or custom steel fabrication, we can do that too.
We’re looking forward to hearing from you, so contact us today and let’s get your project started!
More of our c-store sales fixture creations
DRIVE SALES & BUILD PROFIT
























